Proyectos / Iglesia de Escatrón, Zaragoza
Iglesia de Escatrón, Zaragoza
En la intervención realizada hemos proyectado los trabajos de restauración de suelos, paramentos exteriores e interiores así como los de electricidad, megafonía, iluminación y pintura.
La Iglesia de la Asunción de Nuestra Señora de Escatrón, es un edificio de sillería y ladrillo, de estilo barroco y gótico-renacentista.
Fue declarada Bien Catalogado del Patrimonio Cultural Aragonés en 2002.
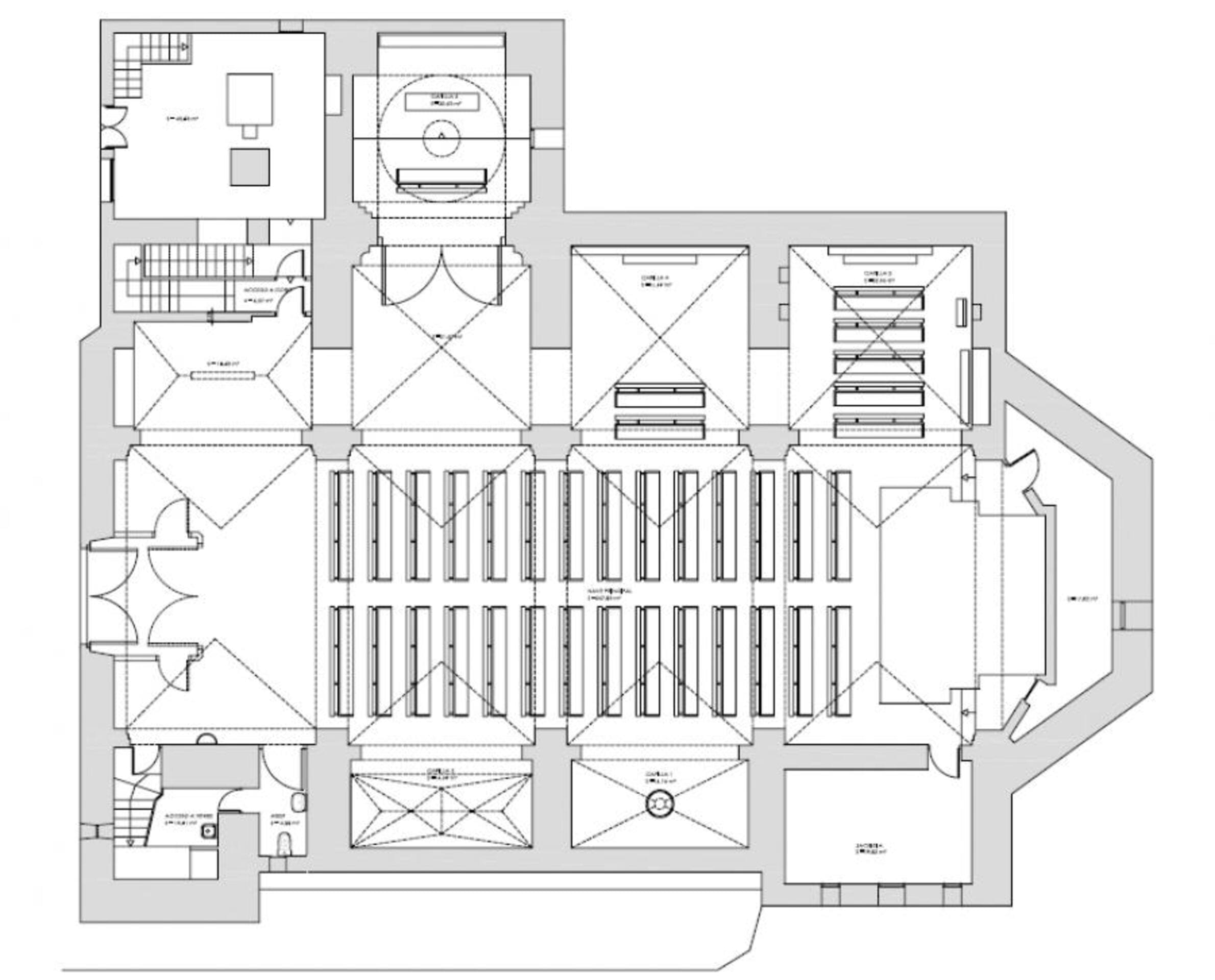
Interiormente se refleja la complejidad de su historia constructiva. Tiene planta rectangular jesuítica, de una nave, sin crucero, ábside circular y capillas renacentistas entre los contrafuertes. Añadiendo otra capilla datada en el siglo XVIII que configura un volumen independiente en uno de los laterales. Se cubre con bóveda de lunetos la nave central, y las capillas, con bóveda de crucería.
Exteriormente destacan sus contrafuertes, coronados por cornisa moldurada, en cuyo frente se sitúan gárgolas. Entre ellos se alzan los volúmenes exteriores de las capillas, de menor altura que la nave. La fachada principal se divide en dos cuerpos por una imponente cornisa.
Dispone de una torre en los pies, de planta cuadrada rematada en una bóveda semiesférica sobre un tambor.
Proyectos relacionados

Ermita Virgen de los Alvares, Nuévalos
2024 – Nuévalos, Zaragoza

Iglesia Parroquial, Nuévalos
2024 – Nuévalos, Zaragoza







