Proyectos / Hotel Arguís, Reforma Integral
Hotel Arguís, Reforma Integral
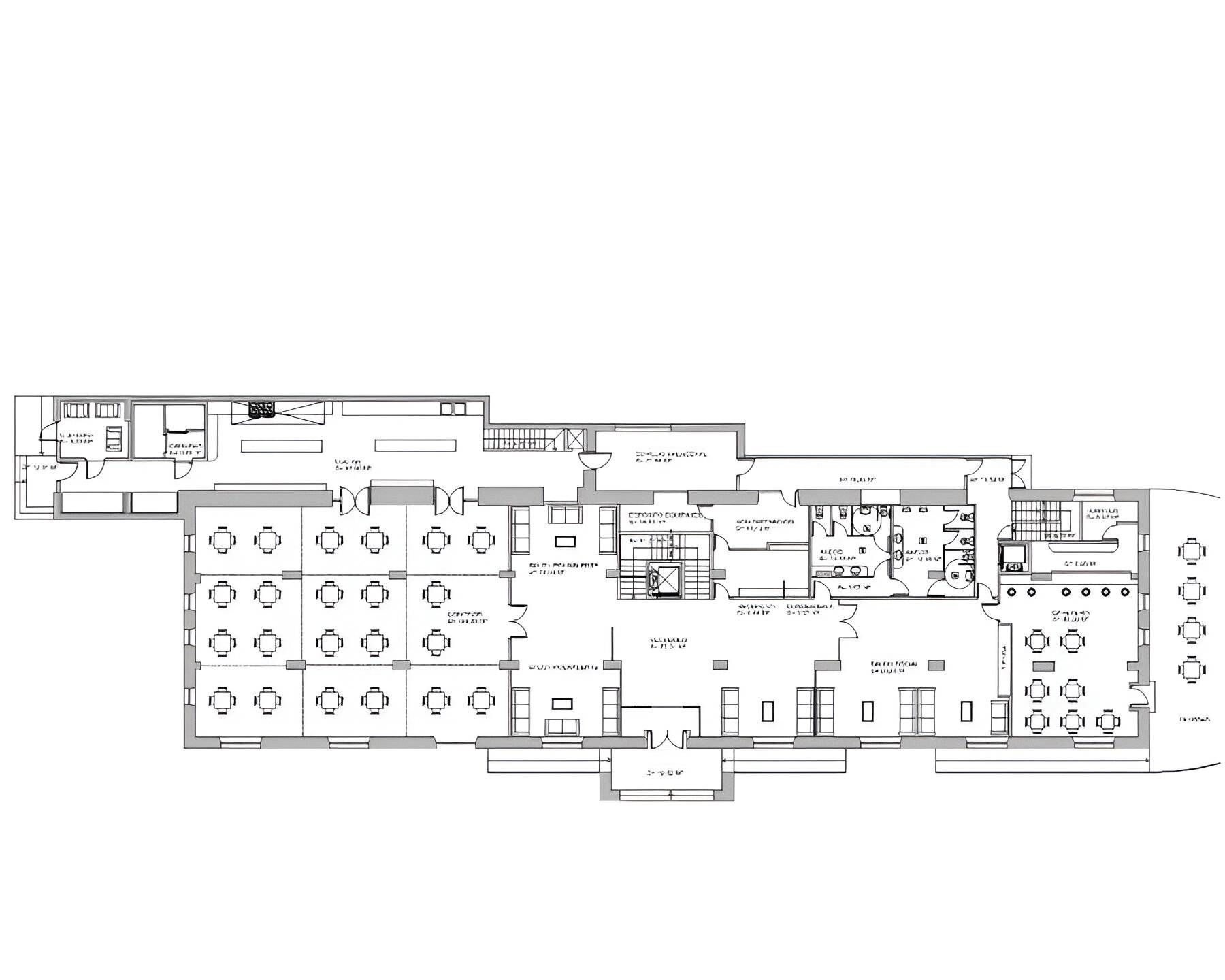
La actuación se plantea como una reforma integral del edificio partiendo de la demolición interior total de la distribución actual, de forma que únicamente se conserven la estructura y las fachadas del mismo.
La reforma se estructura con la versatibilidad suficiente para el desarrollo paralelo de los usos de hotel y escuela de hostelería, incluyendo el programa todo lo imprescindible para su buen funcionamiento.
El proyecto también incluye la adaptación y modificación del programa de manera que se cumplan con todos los requerimientos propios de un hotel de 4 estrellas.
Proyectos relacionados

Hotel Rural Lecina, Bárcabo
2022 – Bárcabo, Huesca

Albergue municipal Santa Cilia, Huesca
2019 – Santa Cilia, Huesca

