Proyectos / 3 Viviendas y Farmacia para HKL, S.A

3 Viviendas y Farmacia para HKL, S.A
La familia García Vela nos encarga el proyecto de tres viviendas y local destinado a farmacia.
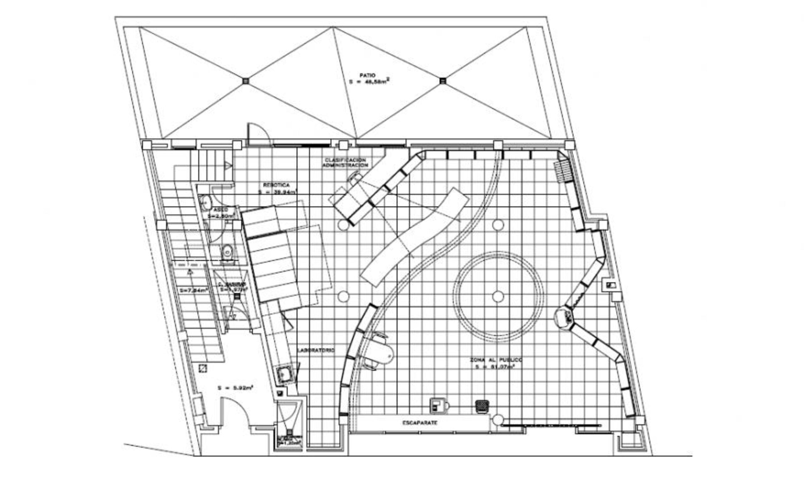
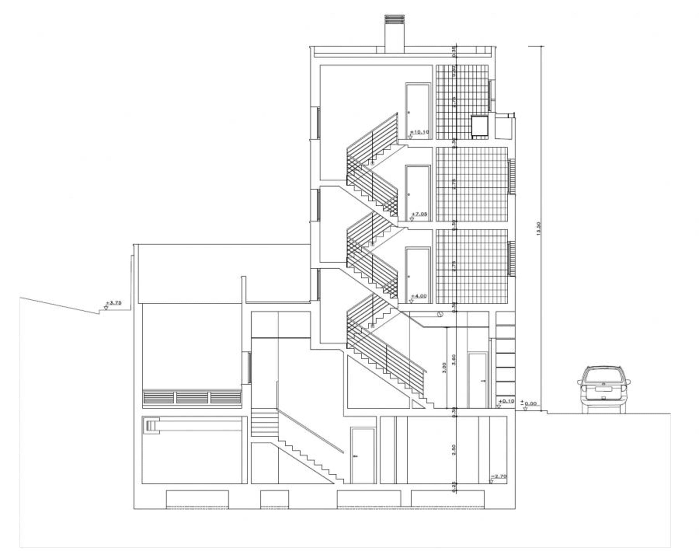
La planta baja corresponde a la botica y recoge a modo de zócalo el edificio a nivel de calle. Sobre ella se resuelven las viviendas en una pieza. Cada apartamento tiene así una doble fachada que garantiza una buena iluminación y ventilación cruzada.
En el proyecto de la farmacia hemos procurado que los productos expuestos tengan gran cantidad de luz indirecta, creando una ambiente agradable y tranquilo. Sus grandes elementos verticales y ligeros nos ayudan a diferenciar varios espacios hacia los que los pies caminan solos, por su poder de atracción.
Proyectos relacionados

Vivienda Pura Castillo, Mainar
2026 – Mainar, Zaragoza

Viviendas Municipales, Labuerda
2026 – Labuerda, Huesca


